Leave a Message

By providing your contact information to Rathmanner Real Estate Team, your personal information will be processed in accordance with Rathmanner Real Estate Team's Privacy Policy. By checking the box(es) below, you consent to receive communications regarding your real estate inquiries and related marketing and promotional updates in the manner selected by you. For SMS text messages, message frequency varies. Message and data rates may apply. You may opt out of receiving further communications from Rathmanner Real Estate Team at any time. To opt out of receiving SMS text messages, reply STOP to unsubscribe.

Thank you for your message. We will be in touch with you shortly.

Explore Our Properties

Property Description

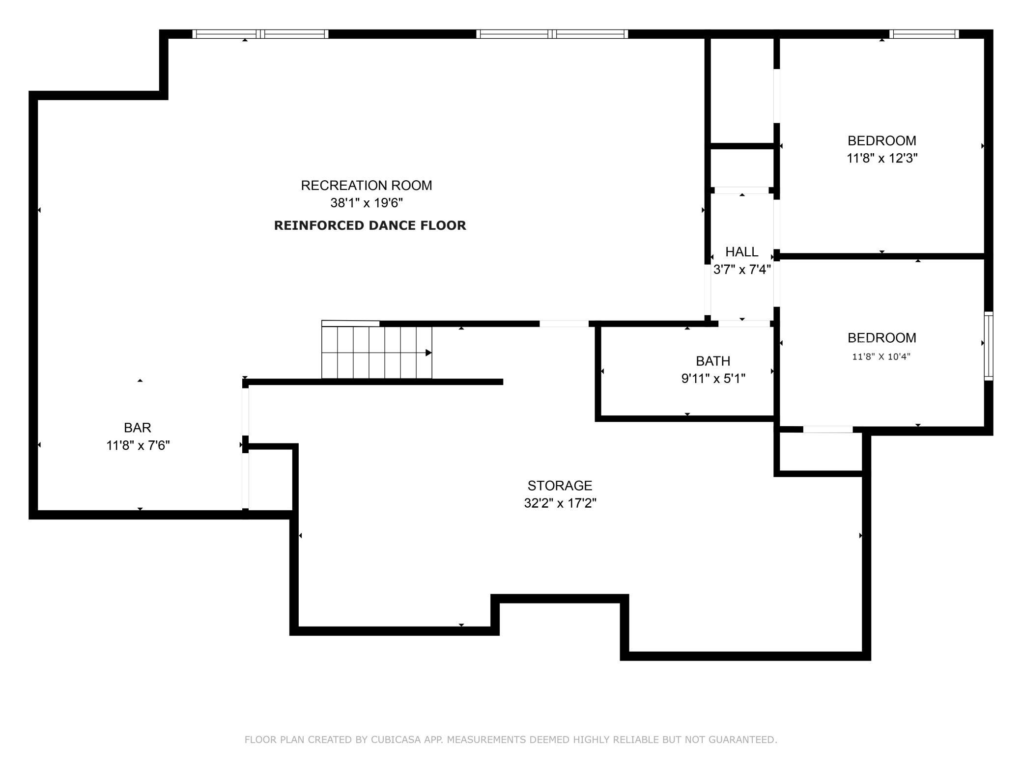
Discover the epitome of luxury in this single-story modern abode nestled within the John Mitchell Preserve. This home has been meticulously maintained and updated, making it an ideal venue for hosting gatherings. Experience the convenience of single-level living with a spectacular main floor owner's suite, complete with gas fireplace, an elegant ensuite bathroom with heated floor, walk-in shower, and relaxing whirlpool tub. Adjacent to the kitchen lies a generous dining room. The main floor also accommodates a versatile second bedroom or office space. The gourmet kitchen boasts a separate dining area, adorned with Cambria countertops, stylish tile backsplash, and subtle recessed lighting. The living room is a haven of comfort with its gas fireplace, custom-built bookshelves, and a grand window that offers a panoramic view of the secluded backyard. Descend to the lower level to find a vast, reinforced wooden dance floor, two additional bedrooms, and a tastefully renovated bathroom.

Overview

Property Status
Sold
Lot Size
0.3 Acres
MLS ID
6531955
Property Type
Residential
Year Built
2003

Features & Amenities

Stories
1
Garage Spaces
3.0
Water Source
City Water/Connected
Roof
Asphalt
Parking
Attached Garage, Heated Garage, Insulated Garage
Heat Type
Forced Air
Air Conditioning
Central Air
Laundry Room
Main Level, Sink
Fireplace
Two Sided, Gas, Living Room, Primary Bedroom
Appliances
Air-To-Air Exchanger, Central Vacuum, Dishwasher, Disposal, Dryer, Exhaust Fan, Gas Water Heater, Microwave, Stainless Steel Appliances, Wall Oven, Washer
Sewer
City Sewer/Connected
Disability Features
None
School District
White Bear Lake
Sales Price
$712,500
Real Estate Tax
$8,444/yr
HOA
$110/yr

Downloads

443 Vadnais Lake Drive

Schedule a Tour

We would love to show you our beautiful property. Please select your preferred date and time below. An agent will be in touch shortly to confirm your appointment.

Thank you

for your interest in 443 Vadnais Lake Drive, Vadnais Heights, MN 55127

443 Vadnais Lake Drive
Navigate

I'm Interested In

443 Vadnais Lake Drive

or
  • CallMax Rathmanner

    License #40391850

    (651) 269-4487
  • Follow Us On Instagram